Full Remodel

Sandy Springs Full Remodel

Complete Tear Down and Rebuild in Sandy Springs

Simple Specs: Full Remodel Ranch with Full Finished Basement

Address:  505 Timber Valley Rd Sandy Springs GA

Status: Completed 2020.03

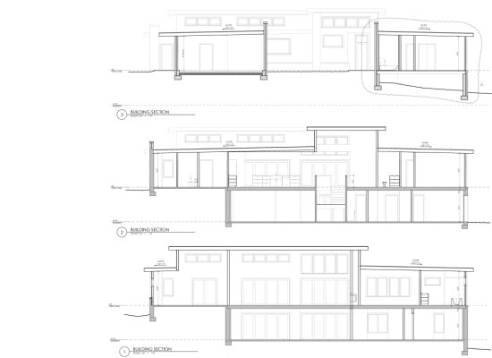
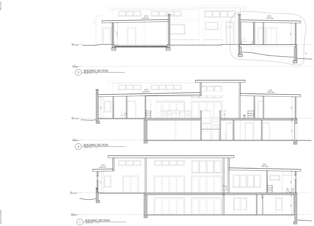
The Sandy Springs homeowners dreamt about this full remodel for many years and hired Bluepoint Construction Southeast to bring their dream to reality. This 1,891 sqft ranch with 3 Bedrooms and 2.5 Baths was demolished, leaving only the basement foundation walls. The homeowners have an elevated taste for aesthetically driven and functional spaces, so they also hired Jones Design Associates to help with the interiors. Together we worked as one team to design the home, select materials & finishes, and create a beautiful modern masterpiece to include 5 Bedrooms, 4 Full Bathrooms, a studio, and a fully finished basement. The only problem we ran into was Covid hit right at the time we completed the project, so we couldn’t get any professional photos. The homeowners are thrilled to live in their dream home and can feel completely confident that their investment was a great decision.

Explore More Renovated Homes By Bluepoint Construction SE