Simple Specs: Craftsman Style Homes 5 different floorplans
Status: Completed 2017-2018
Sold for: $425k – $525k
Bluepoint Construction Southeast built 13 Craftsman-style homes in a picturesque downtown Atlanta neighborhood named East Village Park. The East Village Park neighborhood is walkable to Benteen Park and is south of Little Five Points. EVP offers a hip and unpretentious balance to urban living, surrounded by locally owned shops, farmers’ markets, music, bars, and dining options.
These Craftsman inspired exteriors and modern interior living spaces are designed with both style and comfort in mind. These homes were built in 2015-2016 using 5 different floor plans. Some of them have a basement and some are on a slab. Many GCs prefer to build on easy lots, the ones where they can chop down all the trees, pour a slab, and build quickly. At Bluepoint Construction SE we get excited for the challenge of sloped lots even in tight neighborhoods because we have confidence in our ability to create, plan, and build on any type of lot. The Craftsman-style homes offer a timeless appeal.
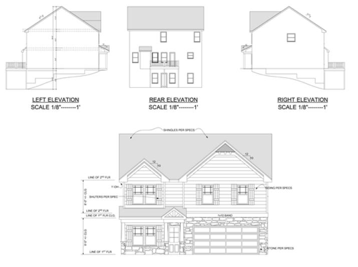
The Peachtree at East Village Park
4 Bedroom + 2.5 Bath + Large Unfinished Basement
Open concept floorplan with chef inspired kitchen
Large primary suite with trey ceiling and spa inspired bathroom
Laundry Room on 2nd floor near bedrooms
Front facing 2 car garage
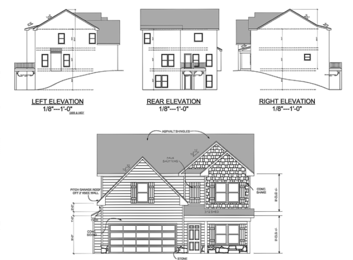
The Washington at East Village Park
4 Bedroom + 2 Bath + Full Unfinished Basement
Open concept floorplan with chef inspired kitchen
Covered front porch with traditional Craftsman style exterior
Laundry Room on 2nd floor near bedrooms
Rear entry 2 car garage
The Westbrook at East Village Park
4-5 Bedroom + 2.5 Bath
Open concept kitchen with breakfast bar island
Laundry Room on 2nd floor near bedrooms
Huge 3rd floor flex room with built in window seat bed and great storage
Rear entry 2 car garage with mudroom / drop zone area
The Braselton at East Village Park
4 - 5 Bedroom + 3 Bath
Owners Suite on 2nd floor with balcony overlooking front yard
Kitchen has breakfast bar kitchen island
Bonus Room option available
The Summerbrook at East Village Park
3 Bedroom + 2.5 Bath
Owners Suite on 2nd floor has large, attached seating area
Open concept kitchen with breakfast bar island
Full Basement
Front facing 2 car garage
Explore More SFH Communities Built By Bluepoint Construction SE